Moderne Fläche für viele Branchen. Ob Logistik, Laden oder Gastronomie. *Provisionsfrei
Informationen zur Immobilie:
Ort
58300 Wetter (Ruhr)
Objektart
Gewerbeobjekt
Größe
ca.
2.610 €
Beschreibung:
Mehr zum Angebot Moderne Fläche für viele Branchen. Ob Logistik, Laden oder Gastronomie. *Provisionsfrei:
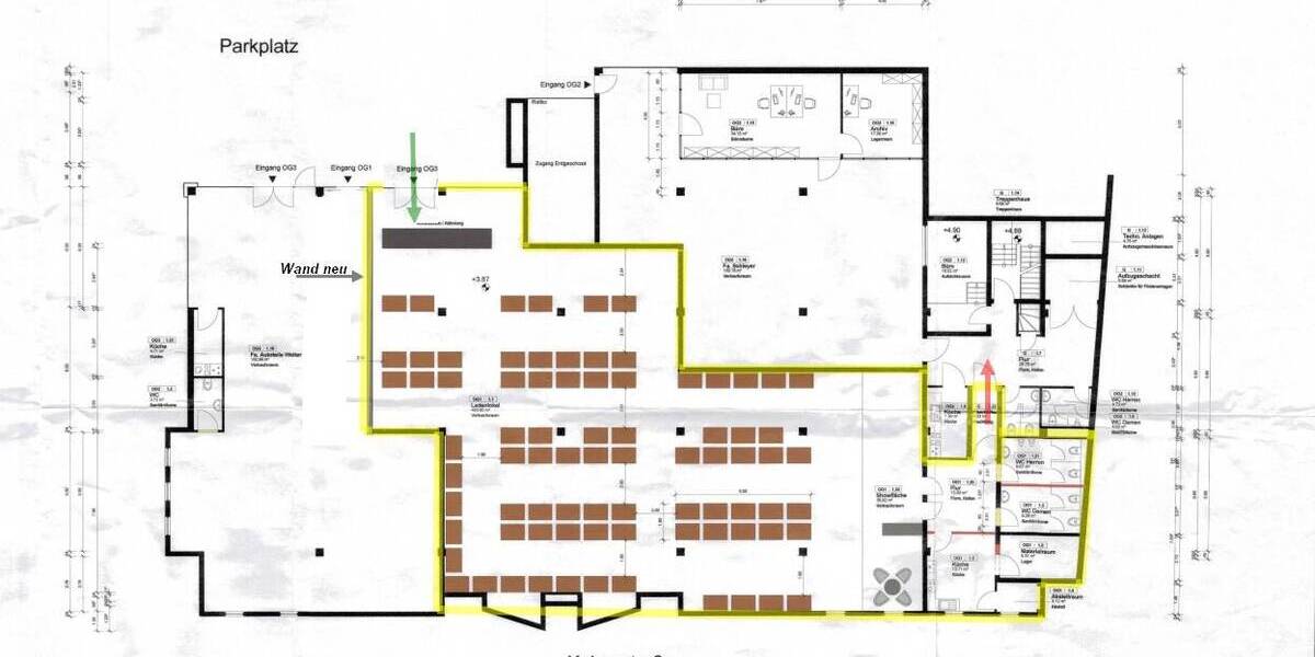
Die angebotene Fläche befindet sich im hinteren Teil des Gebäudes direkt vor dem Parkplatz. Ob Einzelhandel, Praxis, Fitnessstudio, Logistikfläche oder andere Branchen. Hier ist vieles möglich. Ebenfalls besteht die Möglichkeit... mehr erfahren
Die angebotene Fläche befindet sich im hinteren Teil des Gebäudes direkt vor dem Parkplatz. Ob Einzelhandel, Praxis, Fitnessstudio, Logistikfläche oder andere Branchen. Hier ist vieles möglich. Ebenfalls besteht die Möglichkeit... mehr erfahren
weitere Gewerbeobjekte